Mc4Software logo Mc4Software help - Guida in linea

DISEGNO DEGLI IMPIANTI


 


PANNELLI RADIANTI - ASSOCIAZIONE COLLETTORE - AREA RADIANTE


 

Icona:

Comando: ASSOCIATEMANIFOLD

Finalità: Effettua la connessione logica tra collettore e ray area

Pertanto l'inserimento di almeno un collettore è obbligatorio per l'uso di questo comando.

PROCEDURA

Attraverso tale comando l'utente indica al programma, che poi si occuperà di calcolare la temperatura massima di mandata ai collettori, quali sono le ray aree servite da un determinato collettore.

Per un progetto completo tutte le ray aree devono essere associate ad un collettore ricordandosi che una ray area può essere servita da un solo collettore.

Si esegua il comando e come primo dato di input deve selezionare il collettore al quale associare le ray area. Fatto questo occorre disegnare (il comando è sempre attivo) una serie di linee

che simulino il percorso delle tubazioni di adduzione fino all'ingresso della rayarea in oggetto.

Una volta arrivati all'ingresso della ray area (sempre a comando attivo) occorre disegnare l'ultimo tratto che va dall'ingresso al simbolo della ray area. Per fare questo occorre mantenere il il

cursore del mouse all'interno della ray area e premere <Invio> (da tastiera o tramite tasto destro del mouse).

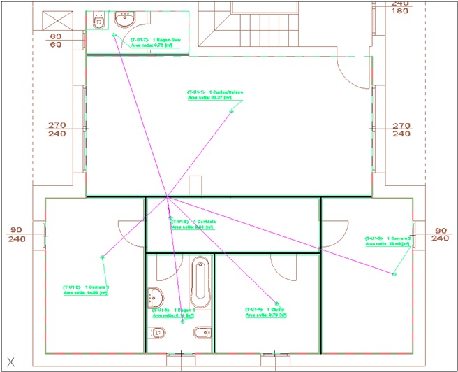
Nell'immagine qui di lato è rappresentato un collettore che serve un intero

alloggio. Si noti che la linea magenta che rappresenta l'associazione

ray area-collettore parte dal collettore ed arriva al tag della ray area.

Pertanto, qualora un ambiente fosse servito da due collettori perché di

 grande dimensione, occorre che l'utente disegni più ray area ed associ

ognuna di esse al collettore di competenza.

Simulando il percorso delle tubazioni di adduzione all'ambiente il

programma rileva in prima fase anche la lunghezza delle stesse e quindi

computare il numero di circuiti in modo più corretto sin dalle prime

impostazioni, fermo restando che al momento di disegno vero e proprio

dei circuiti il calcolo sul loro numero viene rieseguito sulla base del

disegno CAD che ovviamente tiene conto anche delle adduzioni (sempre

che siano disegnate).

 

 

 

 

 

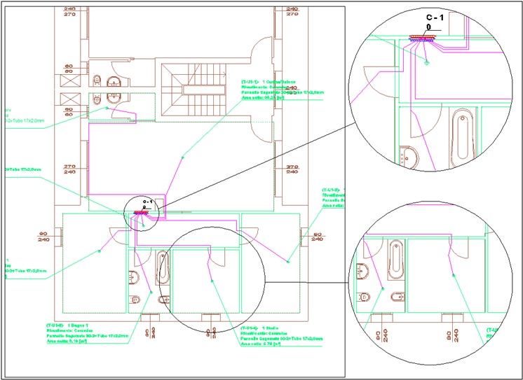
In alternativa l'associazione collettore-ray area può essere fatta disegnando una semplice linea che va dal collettore al simbolo della ray area (vedi immagine qui di seguito).

Il programma è in grado di fornire la relazione di calcolo ed il computo metrico anche se i circuiti non sono stati disegnati. Il calcolo in questo caso si baserà sulle aree dei singoli ambienti

serviti e sulle lunghezze delle adduzioni rilevate tramite la linea di associazione collettore-rayarea. Pertanto qualora non si abbia intenzione di disegnare i circuiti ma si è in una fase di

preventivazione rapida, per ottenere un risultato più corretto sulle quantità di materiale da impiegare e sulle lunghezze dei circuiti stessi che influenzano la perdita di pressione, si raccomanda

l'esecuzione dell'associazione fatta come mostrata nella prima immagine.

Se, invece, occorre disegnare i circuiti i due metodi sono equivalenti perché ai fini dei calcoli il programma leggerà le quantità disegnate e quindi la lunghezza delle linee di associazione non

hanno più influenza sul risultato finale.